Skip to content

Product Information

Redan 100 has separate upward and downward illumination to ensure efficient lighting for both the underside of vehicles and the pit floor.

Redan 100 has been carefully designed to minimise glare, by restricting the output based on the illuminous surface area, in order to comply with BS-EN 12464-1 (1000lm per 300cm²).

Redan 100’s unique shape helps minimise the risk of injury by minimising the protrusion into pit and by deflecting falling objects downwards. With high levels of impact and ingress resistance, Redan 100 is designed to endure the harsh environments expected within rail maintenance pits.

Rail applications include illuminating sunken, light duty maintenance pits within rail facilities.

This luminaire is designed for longevity and sustainability and adheres to our circular design principles. We conduct a circular economy assessment using TM66 and measure embodied carbon (kgCO₂e) in accordance with TM65.2.

Product Specification

Impact Resistance Rating: IK14 (100J). What is IK Rating?
Ingress Protection Rating: IP66. What is IP Rating?
Housing: Zinc coated steel body.
Paint: Polyester powder coat. All Colour Options Available Here.
Diffuser: Flush clear polycarbonate, with glare reduction film.
Driver: Electronic control gear on a removable tray for ease of repair/upgrade with fused plug & socket connector block.
Mounting: Wall.
Cable Entry: Supplied with flying lead.
Design Life: 30+ years. What is Design Life?

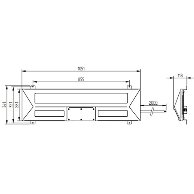
Technical Information

Redan 100 Output (Lum/lm) Load (W) Efficacy (lm/W) CCT (K)
L1051mm
RDN-4-1400N-MT 1419 12 118 4000
CRI Driver Lifetime (up to hours) LED Lifetime Emergency Output (Lum/lm)
CRI>80 100,000 L₉₀B₁₀>72,000h 327
Weight (kg) LED Energy Rating Dimensions
15.1 B 1051mm x 281mm x 110mm
RDN-4-3500N-MT 3442 26.2 131 4000
CRI Driver Lifetime (up to hours) LED Lifetime Emergency Output (Lum/lm)
CRI>80 100,000 L₉₀B₁₀>72,000h 327
Weight (kg) LED Energy Rating Dimensions
15.1 B 1051mm x 281mm x 110mm

Fitting Options

Microwave Sensor - Basic -M1
Maintained Emergency 3 Hour, Self Test -ES
Maintained Emergency 3 Hour, DALI -ED
Maintained Emergency 3 Hour -E3
Textured Black -TB
Matt Titanium -MT
DALI-2 Dimming / Monitoring -DA

• For paint colour options, please replace -MT with required paint code.
• Remote control for Basic MWS -M1, order code : HRC-05.
• -DA and -M1 options cannot be combined.

;