Skip to content

Product Information

Redoubt 100 incorporates separate upward and downward illumination ensuring uniform lighting for both the underside of vehicles and the pit floor.

Redoubt 100 has been carefully designed to minimise glare, by restricting the output based on the illuminous surface area, in order to comply with BS-EN 12464-1 (1000lm per 300cm²). Redoubt 100 has been tested to IP69K to ensure cleaning at high pressure and temperature.

Redoubt 100’s unique shape helps minimise the risk of injury by minimising the protrusion into pit and by deflecting falling objects downwards. With high levels of impact and ingress resistance, Redoubt 100 is designed to endure the harsh environments expected within rail maintenance pits.

Rail applications include illuminating sunken, heavy duty maintenance pits within rail maintenance facilities.

This luminaire is designed for longevity and sustainability and adheres to our circular design principles. We conduct a circular economy assessment using TM66 and measure embodied carbon (kgCO₂e) in accordance with TM65.2.

Product Specification

Impact Resistance Rating: IK16 (150J). What is IK Rating?
Ingress Protection Rating: IP66, IP69, IP69K. What is IP Rating?
Housing: Marine grade stainless steel body.
Paint: N/A.
Diffuser: Flush clear polycarbonate, with glare reduction film.
Driver: Electronic control gear on a removable tray for ease of repair/upgrade with fused plug & socket connector block.
Mounting: Wall.
Cable Entry: Supplied with flying lead.
Design Life: 30+ years. What is Design Life?

Technical Information

Redoubt 100 Output (Lum/lm) Load (W) Efficacy (lm/W) CCT (K)
L1050mm
RDT-4-1400N-SF 1419 12 118 4000
CRI Driver Lifetime (up to hours) LED Lifetime Emergency Output (Lum/lm)
CRI>80 100,000 L₉₀B₁₀>72,000h 327
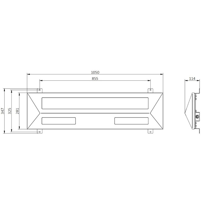
Weight (kg) LED Energy Rating Dimensions
13.5 B 1051mm x 281mm x 114mm
RDT-4-3500N-SF 3442 26.2 131 4000
CRI Driver Lifetime (up to hours) LED Lifetime Emergency Output (Lum/lm)
CRI>80 100,000 L₉₀B₁₀>72,000h 327
Weight (kg) LED Energy Rating Dimensions
13.5 B 1051mm x 281mm x 114mm

Fitting Options

Microwave Sensor - Basic -M1
Maintained Emergency 3 Hour, Self Test -ES
Maintained Emergency 3 Hour, DALI -ED
Maintained Emergency 3 Hour -E3
Stainless Steel Finish -SF
DALI-2 Dimming / Monitoring -DA

• Remote control for Basic MWS -M1, order code : HRC-05.
• -DA and -M1 options cannot be combined.

;